Fusion

  • Avant taxes : 555 000$

    Avec taxes et ristournes : 639 000$

    * Inclus terrain de 30 000pc. à 40 000pc.

  • EXTÉRIEUR

    Voici les détails de ce qui est inclus et exclus dans nos prix de construction, en lien avec les images extérieures telles que présentées sur notre site :

    TOITURE:

    Le type de toiture et ses matériaux illustrés sont inclus : 2 versants, plat, 4 versants ou toiture complexe, ainsi que le bardeau d'asphalte. Nous n'incluons pas les toits de tôle dans nos prix, si applicable le prix disponible est affiché dans la section options.

    FONDATION:

    Types de fondations :

    Les prix affiché spécifie le types de fondations qui est incluse :

    -        Dalles de bétons (aucun sous-sol)

    -        Sous-sol aménageable (inclus seulement gypse au périmètre)

    -        Sous-sol walk-out aménager (finition complète selon le plan affiché)

    REVÊTEMENT EXTÉRIEUR:

    Les prix de base sont calculés avec un revêtement de clin couleur standard en vinyle sur les côté et arrière peu importe ce qui est présenté sur le site internet. À cela nous incluons dans les prix, les matériaux spéciaux illustrés en façade seulement, sur notre site tels que : clin de fibrociment, de cèdre, maçonnerie partiel ou total, board & batten, bois, et autres.

    Les poutres de bois illustrées sur l'extérieure de nos maisons sont aussi incluses dans les prix, mais elles sont «capées » et non en bois massif. De même que les portes d'entrée et portes de garage. Elles sont incluses aux prix, mais de qualité standard blanc.

    Concernant les revêtements de maçonnerie : sur plusieurs modèles, une touche de brique-pierre comme on en retrouve chez la plupart des fabricants de brique est proposé et incluses aux prix. Aucune pierre naturel n’est incluse.

    FENÊTRES:

    Les fenêtres incluses aux prix sont en PVC blanches à l’intérieur et extérieur.

    Les fenêtres de couleur qui sont illustrées sur certains de nos modèles sont exclues. Le prix pour les obtenir avec une couleur extérieur (l’intérieur demeure en pvc blanc) est affiché dans la section options de chaques plans.

    BALCON(S) ET TERRASSE(S):

    Les balcons et terrasses qui sont illustrés sur nos plans ET abrités, sont inclus dans nos prix. Cependant, les patios non abrités ainsi que les cuisines extérieures ne sont pas inclus aux prix.

    GARAGE ATTACHÉ À LA MAISON:

    Le garage attaché à la maison choisi, et tel qu'illustré sur notre site, est inclus dans le prix.

    ESPACE OU RANGEMENT BONI AU-DESSUS DU GARAGE:

    Si une pièce boni ou un rangement boni est prévue à l'étage du garage, il est inclus dans le prix, qu'il soit accessible par un escalier standard ou escamotable. Cependant, les pieds carrés ne sont pas inclus aux pi² de l'étage ou de la surface habitable totale.

    AUTRES:

    L’aménagements paysagers n’est pas inclus aux prix. Seulement la finition brut de l’entrée en gravier 0-3/4 et la finition brute afin de nivellé le périmètres de la maison selon la topographie du terrain sont incluses. L’installation de tourbes, les cuisines extérieures, mobiliers illustrés, piscine et décorations florales sont exclus.

    INTÉRIEUR

    Voici les détails de ce qui est inclus et exclus dans les prix de construction, en lien avec les plans de plancher intérieurs tels que présentés sur notre site :

    PLOMBERIE & SALLE DE BAIN(S):

    L’installationd'un système de plomberie standard, ainsi que les accessoires tels éviers, douche(s) en acrylique, toilette(s), bain(s) standard(s) sont inclus. La céramique standard moyenne gamme des murs de douches est incluse si applicable, toutefois les bases de douches sont toujours prévus en acrylique.

    ÉLECTRICITÉ & LUMINAIRES:

    L’installation d'un système électrique standard, ainsi que les interrupteurs muraux de type DECORA et les luminaires standards sont inclus. Les lumières encastrées (pot light) sont affiché dans la section options de chaques plans.

    CHAUFFAGE:

    L'installation d'un système de chauffage électrique ainsi que les plinthes et gradateurs muraux sont inclus dans nos prix. Les prix pour le chauffage radiant dans la dalle de béton ou si applicable sous la céramique de salle de bain et de cuisine et le chauffage/ climatisation centrale sont affiché dans la sections options de chaques plans.

    CLIMATISATION:

    Un climatisateur murales de types thermopompe est inclus dans les prix.

    PLAFOND :

    La hauteur de plafonds prévue à chaque étage, et précisée sur la fiche du plan, est incluse dans les prix. Ainsi si un/des planchers prévoient un plafond cathédral ou à plus de 8' ou en pente, les coûts s'y rattachant sont inclus.

    Cependant, si des poutres ou moulures de bois ou imitation de bois sont installées dans un plafond cathédral (sur nos illustrations ou photos), elles ne sont pas incluses dans les prix.

    PLANCHERS:

    Les revêtements aux différents planchers prévus sont : de la céramique de qualité standard à l'entrée principale, à la cuisine et à la (aux) salle(s) de bain (12 X 24), et plancher flottant aux aires communes (salle de séjour, salle à manger), aux chambres et salle familiale secondaire. Le prix de l’option de plancher ingénierie avec une surface en vrai bois de 3mm ou 4mm est affiché dans la section options de chaques plans.

    CUISINE:

    Les armoires incluses aux coûts sont en mélamine de couleurs standard avec portes unies. Les dessus de comptoir sont en stratifié standard. Les dosserets de comptoir en céramique moyenne gamme. La plomberie de la cuisine ainsi que les luminaires fixes sont inclus dans les prix. L’option pour un comptoir en quartz qualité standard est affiché dans la section options de chaques plans.

    ESCALIER(S):

    Les escaliers montants sont en bois franc et ceux descendants sont en particule de bois recouverts de tapis.

    SOUS-SOL AMÉNAGÉ:

    L’aménagement du sous-sol inclus seulement le gypse au périmètres des murs extérieur et aucune division n’est incluses. Seulement lorsqu’un sous-sol walk-out aménageable est spécifié que la finition complètes est incluses dans le prix.

    AUTRES:

    Tous les appareils électroménagers, mobiliers et tous les éléments de décorations sont exclus.

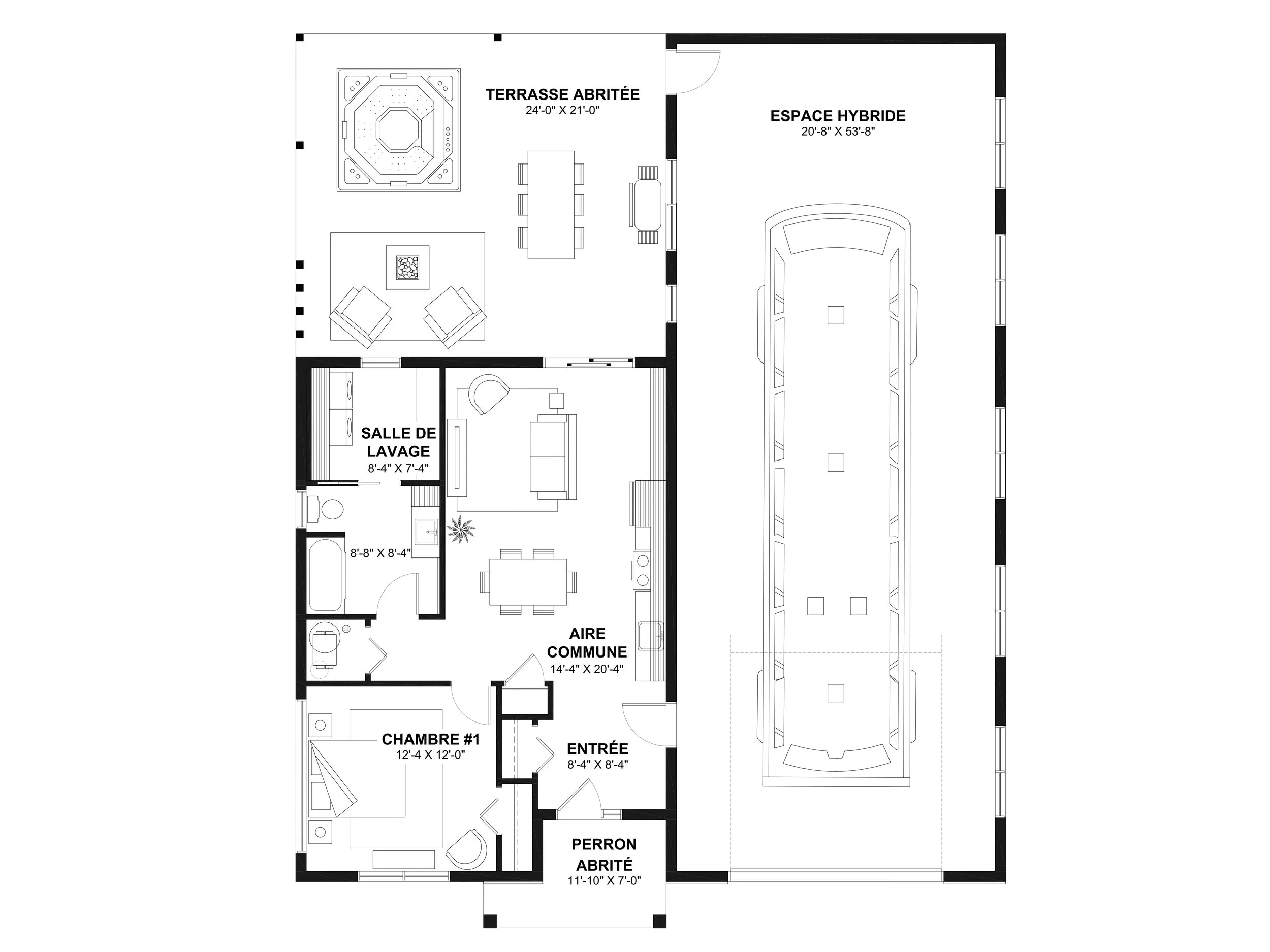
    • Bowman

1 étage

Concept hybrid

1 salle de bain


Superficie: 2100 pc

Réserver ce modèle

Plan et division

Option VR

Option Maison

Recherchez d’autres modèles

Retour à nos modèles
Plus de 1100 modèles